Каталог
Все проекты
Дома из клееного бруса
Каменные дома
Бани
О компании
О нас
История компании
Корпоративная культура
Отзывы
Наши работы
Клиентам
Индивидуальное проектирование
Строительство домов из бруса
Отделка домов из бруса
Дизайн интерьера дома из бруса
Дополнительные услуги
Полезная информация
Контакты
+ 7 (495) 374-86-49
Пн-Пт: 9:00–18:00
Каталог
Все проекты
Дома из клееного бруса
Каменные дома
Бани
Компания
О компании
Наша история
Корпоративная культура
Партнеры
Отзывы
Наши работы
Галерея построенных объектов
Объекты на карте
Клиентам
Индивидуальное проектирование
Строительство домов из бруса
Отделка домов из бруса
Дизайн интерьера дома из бруса
Дополнительные услуги
Полезная информация
Отзывы
Open Village
Кредитование
Стройка online
Контaкты
+ 7 (495) 374-86-49
info@dom-forest.ru
Социальные сети
г. Москва,
переулок Денежный 8/10
г. Киров,
ул. К. Маркса, д. 68
Проекты
Стройка онлайн
Контакты
Меню
Главная
Каталог
Дома из клееного бруса
Дом «Вест»
Дом «Вест»
Фасад
Планировка
Дом "Вест"
По запросу
75 м2
12,1 × 8,6 м
2 спальни
1 санузел
Запросить расчет
Обсудить проект
Скачать доп. планировки
Заказать экскурсию
по готовому дому
Заказать
PDF-каталог
Описание
Дом «Вест»
— это ответ тем, кто давно хочет переехать за город, но не готов тянуть большую стройку. Компактный одноэтажный дом из клееного бруса площадью 75 м² с продуманной планировкой, где каждый метр живёт своей жизнью. Две полноценные спальни, большая кухня-гостиная с панорамным окном и терраса — всё, что нужно молодой паре или небольшой семье для счастливой загородной жизни.
Никаких лестниц, никаких тёмных коридоров, никакой путаницы. Один этаж — один ритм жизни.
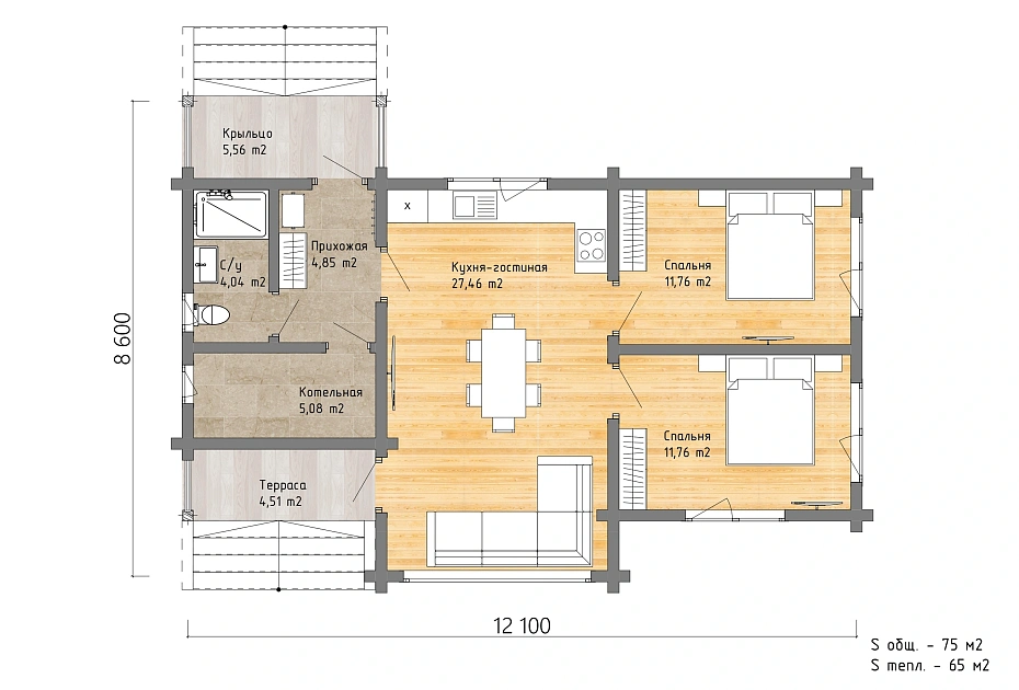
Описание планировки
Кухня-гостиная
— 27,46 м²
Сердце дома с большим панорамным окном, которое наполняет пространство светом с утра до вечера. Здесь поместится просторный обеденный стол, кухонный гарнитур с островом и диванная зона — и при этом не будет ощущения тесноты. Открытый формат делает кухню и гостиную единым пространством, где вся семья естественно собирается вместе.
Две спальни
— по 11,76 м² каждая
Симметричные, равнозначные. В каждую входит двуспальная кровать, шкаф и место для прикроватных тумб. Расположены в отдельном крыле: гостевые шаги с кухни до спален не разбудят тех, кто спит. Для молодой пары — хозяйская и гостевая. Для семьи с ребёнком — родительская и детская.
Прихожая
— 4,85 м²
Компактная, но функциональная входная зона: место для верхней одежды, обуви, корзины с уличным инвентарём. Отделена от жилой зоны — грязь и холод остаются за дверью.
Санузел
— 4,04 м²
Продуманное расположение: между спальнями и прихожей, доступен со всех сторон дома. Для небольшого дома — оптимальный размер под душ, раковину и унитаз без лишних потерь площади.
Котельная
— 5,08 м²
Вынесена в отдельное помещение — оборудование не занимает жилую площадь, не создаёт шума и не влияет на микроклимат дома. Достаточно просторная для котла, бойлера и технического обслуживания.
Терраса и крыльцо
Небольшая открытая терраса — место для утреннего кофе или вечернего отдыха. Удобное крыльцо с навесом создаёт буфер между улицей и домом: можно разуться под навесом даже в дождь.
Для кого этот дом
Дом «Вест» подойдёт тем, кто:
— хочет небольшой одноэтажный дом из бруса для постоянного или сезонного проживания;
— строит дом для двоих или для молодой семьи с одним ребёнком;
— ценит компактность и не хочет переплачивать за лишние метры;
— ищет дом, который можно построить быстро и без долгого ожидания.
Небольшой участок? «Вест» занимает всего 12 × 9 метров в пятне застройки — подходит даже для участков от 6 соток.
Стоимость строительства зависит от комплектации, типа фундамента и материала стен. Оставьте заявку — рассчитаем под ваш участок и бюджет в течение одного рабочего дня.
Хотите внести изменения в проект?
Заполните форму и мы с вами свяжемся в ближайшее время
Отправить
Нажимая на кнопку вы соглашаетесь с
политикой конфиденциальности
Нажимая на кнопку вы соглашаетесь с
политикой конфиденциальности
Остались вопросы?
Поможем построить качественный дом и воплотить ваши желания в реальность
Любой
Max
Звонок
Telegram
Отправить
Назад
Фильтр
Сбросить
Тип проекта
Все варианты
Баня
Дом
Материал
Все варианты
Дома из камня
Клееный брус
Профилированный брус
Этажность
Все варианты
1 этаж
2 этажа
Размер
Все варианты
10x8
11x10
11x11
11x13
11x15
11x6
11х10
11х12
12x11
13x10
13x12
13x14
14x12
14x14
14x15
14x8
15x13
15x16
15х9
16x25
17x16
17x19
17х17
18x16
18x20
18x9
20x10
22x16
8x5
9x10
9x14
9x19
Площадь, м2
от
до
Показать
34 дома
Поделиться
Наша группа Вконтакте
Наш Telegram канал
Наш YouTube канал
Закрыть
Обратный звонок
Наш менеджер свяжется с вами в течение дня
Отправить
Нажимая на кнопку вы соглашаетесь с
политикой конфиденциальности
Заказать экскурсию
Наш менеджер свяжется с вами в течение дня
Отправить
Нажимая на кнопку вы соглашаетесь с
политикой конфиденциальности
Получить каталог проектов
Наш менеджер свяжется с вами в течение дня
Отправить
Нажимая на кнопку вы соглашаетесь с
политикой конфиденциальности