Дом «Геркулес»

Описание

Дом по проекту «Геркулес»

Двухэтажный просторный дом буквально создан для счастливой жизни. Сочетание природных материалов и современных технологий в строительстве позволило создать все условия для комфортного проживания большой дружной семьи. Превосходная работа ландшафтных дизайнеров позволила создать впечатление уединенного лесного уголка, в который органично вписался красивый загородный дом.

Дом имеет два входа: с главного фасада через террасу (52,77 кв.м) и с бокового фасада через просторное крыльцо (10,28 кв.м).

Терраса – уникальное место в этом доме. Фантазии заказчика нет предела. Ее можно зонировать, выделив обеденную, игровую зону и зону отдыха. Высокие растения в вазонах помогут создать оригинальный визуальные стены.

Первый этаж дома условно можно разделить на две части:

  • жилая: гостиная (75,20 кв.м), столовая (18,85 кв.м), кухня (12,72), кабинет (18,39 кв.м), спальня (18,43 кв.м), гардероб (10,19 кв.м)

  • нежилая: тамбур (12,95 кв.м), кладовая (5,24 кв.м), котельная-мастерская (12,80 кв.м), санузел (10,15 кв.м)

Тамбур, кроме своего основного назначения, выполняет функцию прихожей. Довольно просторное помещение оборудовано шкафами для верхней одежды и электрическими сушилками для промокшей обуви. Слева от этого помещения находится кабинет – уединенное место, где можно полностью сосредоточиться. Это возможно именно на первом этаже, так как спальня для гостей (справа от тамбура) от случая к случаю бывает занята.

Огромная гостиная – место проведения праздников и приема гостей. Это нарядное и светлое помещение за счет большого количества широких окон и правильно подобранного освещения (прямого, рассеянного и непрямого). Что позволяет создать в гостиной праздничное и феерическое настроение или камерную обстановку.

Столовая – востребованное и любимое место у всей семьи. В будни здесь всем уютно и комфортно. Можно присматривать за ребенком, который занят своими делами, из кухни, которая рядом. Кладовую для посуды, продуктов и припасов могут себе позволить немногие. В этом доме рядом с кухней есть комната, оборудованная стеллажами и системой хранения продуктов. Отдельная кладовая разгружает кухню, делает ее свободнее и светлее.

Просторной гардеробной дизайнеры уделили особое внимание, оборудовав ее современными системами хранения.

Впечатляет и санузел – просторное помещение с окном. Благодаря светлому интерьеру, функциональной скрытой системе хранения комната смотрится стильно и элегантно.

В котельную-мастерскую можно попасть как из дома, так и с террасы. В помещении находятся стеллажи для хранения инструментов, а также отопительное оборудование.

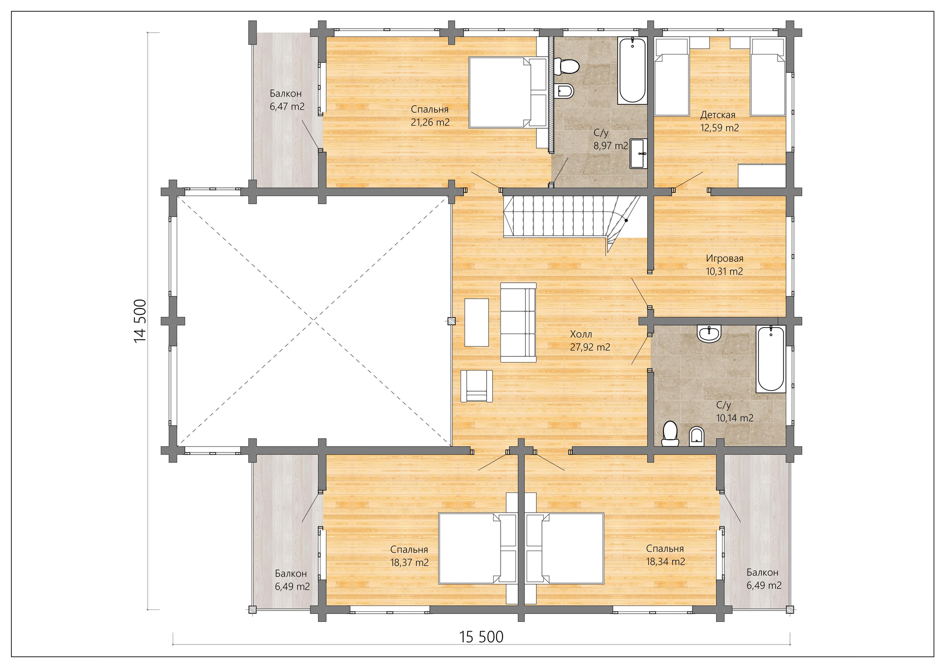
Второй этаж дома условно можно разделить на две части:

  • жилая: хозяйская мастер-спальня (21,26 кв.м) с выходом на балкон (6,47 кв.м) и собственным санузлом (8,97 кв.м), детская (12,59 кв.м) совмещена с игровой комнатой (10,321 кв.м), две одинаковые спальни (по 18,37 кв.м)

  • нежилая: холл (27,9 кв.м) и санузел (10,14 кв.м)

Мастер-спальня – это настоящие «личные покои» хозяев дома. Наличие такой частной территории в доме необходимо для комфортной жизни взрослых в большом семействе.

Две спальни радуют их хозяев большой площадью и выходом на балкон. Приятно в любую погоду радоваться лесным видом из окна, а в теплое время года на балконе можно сделать уютный цветочный уголок или столик для чайной церемонии.

Санузел благодаря светлому интерьеру и функциональной скрытой системе хранения смотрится стильно и элегантно.

Большой и при этом красивый холл объединяет комнаты хозяев дома и гостей. Безусловно, модный и уютный холл это – заслуга дизайнеров интерьера. Они, используя современные дизайнерские приемы, превратили безликий холл в дополнительное место отдыха, общения, а иногда уединения.

Этот проект для тех, кто привык себе ни в чем не отказывать. Поэтому проживание в таком доме должно приносить радость и удовольствие!

Согласно пожеланиям заказчика возможно внести изменения в проект.

Базовая комплектация

Проектная документация
Эскизный проект
Проектная документация раздел КД (конструкции деревянные)
Обследование земельного участка
Привязка пятна застройки и оценка состояния участка
Геодезия (топосъемка) пятна застройки
Подробная консультация специалиста по размещению строения на участке с учетом строительных, противопожарных норм с ориентацией по сторонам света
Фундамент
Разметка свайного поля
Железобетонные забивные сваи из высокопрочного бетона и рифленой арматуры
Забивка свай с применением на площадке специальной техники - миникопра
Монтаж усиленной двойной обвязки брусом сечением 200 х 150 мм из хвойных пород с обработкой биозащитой
Обрезка свай по уровню
Крепление и гидроизоляция оголовков свай
По запросу возможны другие варианты фундаментов
Стеновой комплект
Двойная обвязка брусом сечением 200 х 150 мм, обработанный биозащитным составом
Рулонная гидроизоляция
Брус клееный профилированный сечением (внешние стены) 205х185(h)мм
Брус клееный профилированный сечением (внутренние перегородки) 160х185(h)мм
Клеевая система Akzo Nobel (Швеция)
Антисептирование стенового бруса с 4-х сторон на производстве
Обработка торцов составом, предохраняющим от проникновения влаги, растрескивания
Утепление межвенцового паза  и чаши утеплителем Политерм
Стягивание бруса узлом силы в шахматном порядке на расстоянии в полтора метра
Балки перекрытия из сухого бруса 100х200 мм, обработанные биозащитным составом
Упаковка в специальную защитную пленку
Черновая строительная однопролетная лестница
Кровля
Стропильная система из доски 50х200 мм
Контробрешетка из бруска 50х50 мм
Обрешетка из доски 25х100 мм
Все деревянные элементы обработаны биозащитным составом
Утепление 200 мм с использованием экологически чистых утеплителей
Пароизоляция мембранного типа и ветро-влагозащита
Металлочерепицы Grand Line (покрытие Satin, комплектующие по проекту)
Цвет кровельного покрытия на выбор

Хотите внести изменения в проект?

Заполните форму и мы с вами свяжемся в ближайшее время

Клееный брус

собственного производства

Строительство дома из клееного бруса становится все более популярным выбором среди людей, стремящихся к экологичному и устойчивому образу жизни.

Клееный брус - это материал, изготовленный путем склеивания нескольких слоев древесины. Он обладает рядом преимуществ, которые делают его привлекательным для строительства коттеджей, загородных домов и коттеджных поселков.

В этой статье мы рассмотрим основные преимущества строительства дома из клееного бруса.

Подробнее
Клееный брус

Остались вопросы?

Поможем построить качественный дом и воплотить ваши желания в реальность