Дом «Бруно»

Описание

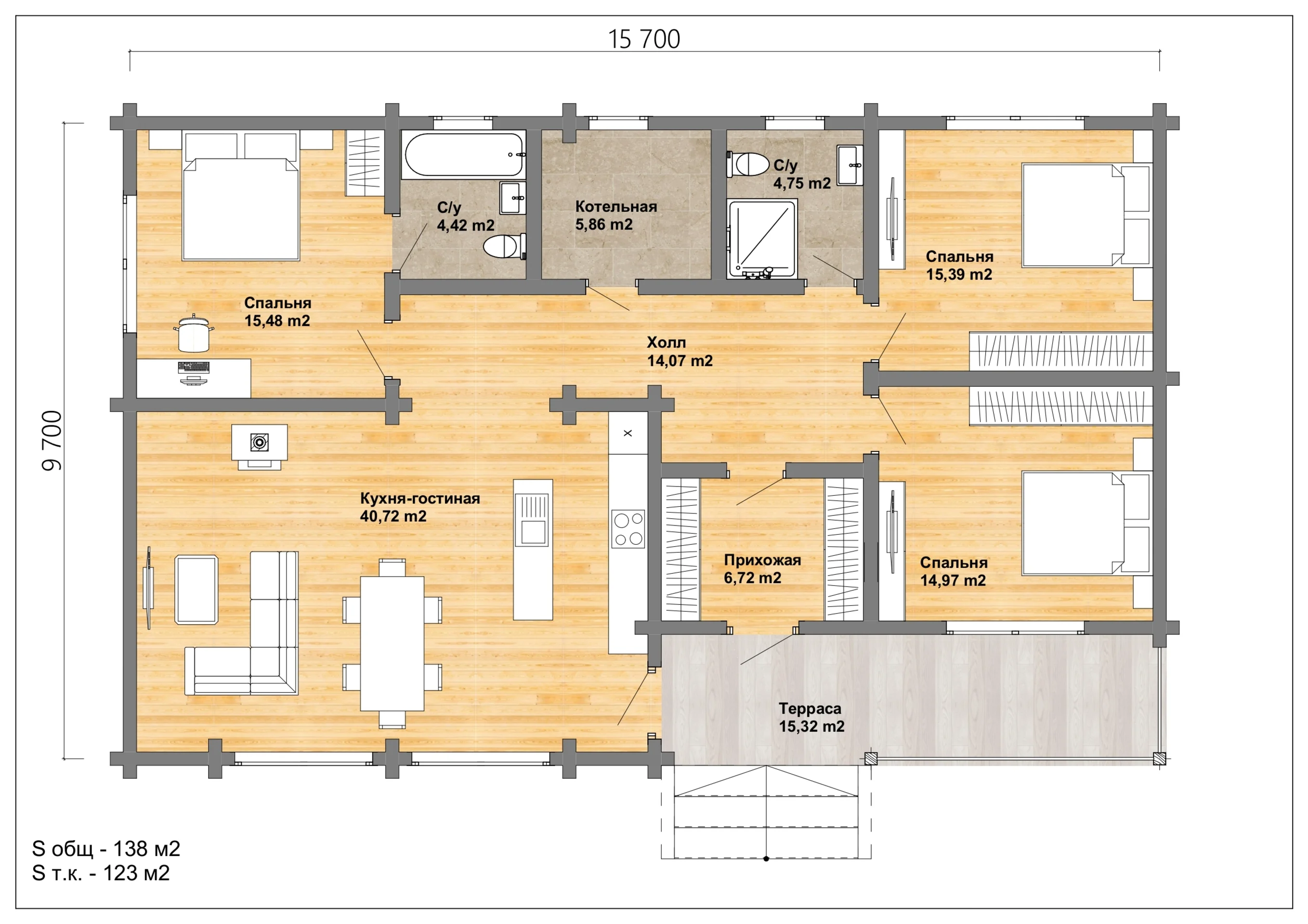
Дом «Бруно»: 

Одноэтажный комфорт для всей семьи

Это дом для тех, кто ценит простоту планировки, но не готов идти на компромиссы в комфорте. Одноэтажное пространство, где каждая зона продумана до мелочей, а семейная жизнь разворачивается естественно и свободно. Здесь нет лишних лестниц, неудобных коридоров и потерянных метров — только то, что действительно нужно для счастливой жизни семьи из 4-5 человек.

Суть проекта:
Мы создали дом, где приватность сочетается с единением. Просторная общая зона объединяет семью, а три изолированные спальни дают каждому личное пространство. Это идеальный баланс между «вместе» и «отдельно», который так важен в современной жизни.

Ключевые особенности:

* Формат: Практичный одноэтажный дом из клееного бруса
* Площадь: 138 м² — оптимальный размер без лишних метров
* Полезная площадь: 123 м² внутреннего пространства
* Дополнения: Просторная терраса 15,32 м² для семейных вечеров на свежем воздухе
* Размеры: 15,7 × 9,7 м — компактный габарит для участка любого размера
* Материал: Премиальный клееный брус для круглогодичного комфорта и долговечности

Продуманная планировка: три спальни и сердце дома

Этот проект — про настоящий семейный комфорт, где у каждого есть своё место, но всем хорошо вместе.

Сердце дома — кухня-гостиная (40,72 м²):
Огромное открытое пространство, где готовка превращается в общение, а ужин — в главное событие дня. Панорамный выход на террасу стирает границы между домом и природой. Здесь поместится большой обеденный стол, удобный диван и просторная кухня — и останется место для свободы движения.

Три полноценные спальни (15,48 м² / 15,39 м² / 14,97 м²):

Полноценные комнаты, где поместится двуспальная кровать, шкаф и рабочее место. Идеально для семьи с двумя детьми или для тех, кто мечтает о гостевой комнате.

Два санузла — никаких очередей по утрам (4,75 м² + 4,42 м²):
Это не роскошь, а необходимость для комфортной жизни. Один санузел для гостей и детей, второй — приватный, рядом с мастер-спальней. Утренний хаос остался в прошлом.

Просторная прихожая (6,72 м²):
Место, где вы действительно можете переобуться, стряхнуть куртку и сложить сумки. Не узкий «коридорчик», а полноценная входная зона с местом для гардероба.

Холл (14,07 м²):
Умная буферная зона, которая соединяет все помещения, не превращаясь в сквозной коридор. Здесь можно разместить библиотеку, зону отдыха или игровой уголок для детей.

Техническая зона — вне поля зрения, но под контролем:
Котельная (5,88 м²) компактно вмещает всё необходимое оборудование. Изолирована от жилых комнат, но легко доступна для обслуживания. Никаких шумов и запахов в доме.

Терраса (15,32 м²) — ваша летняя гостиная:
Продолжение дома под открытым небом. Утренний кофе, барбекю по выходным, вечерние разговоры под звёздами — здесь разместится полноценная зона отдыха с мебелью и зоной для гриля.

«Бруно» — это дом для жизни! Здесь нет метров «для красоты» — только функциональные, удобные пространства. Это выбор тех, кто знает цену практичности и не хочет переплачивать за лишние квадратные метры.


Базовая комплектация

Общее
Все транспортные расходы в пределах Московской, Кировской областей
Погрузочно-разгрузочные работы
Организация проживания рабочих (бытовка, биотуалет)
Вывоз мусора после завершения строительства
Монтаж специалистами Дом Форест
Технический надзор специалистами компании
Гарантия 5 лет
Техническое обслуживание №1
Проектная документация
Эскизный проект
Проектная документация раздел КД (конструкции деревянные)
Обследование земельного участка
Привязка пятна застройки и оценка состояния участка
Геодезия (топосъемка) пятна застройки
Подробная консультация специалиста по размещению строения на участке с учетом строительных, противопожарных норм с ориентацией по сторонам света
Фундамент
Разметка свайного поля
Железобетонные забивные сваи из высокопрочного бетона и рифленой арматуры
Забивка свай с применением на площадке специальной техники - миникопра
Монтаж усиленной двойной обвязки брусом сечением 200 х 150 мм из хвойных пород с обработкой биозащитой.
Обрезка свай по уровню
Крепление и гидроизоляция оголовков свай
По запросу возможны другие варианты фундаментов
Стеновой комплект
Двойная обвязка брусом сечением 200 х 150 мм, обработанный биозащитным составом
Рулонная гидроизоляция
Брус клееный профилированный сечением (внешние стены) 205х185(h)мм
Брус клееный профилированный сечением (внутренние перегородки) 160х185(h)мм
Клеевая система Akzo Nobel (Швеция)
Антисептирование стенового бруса с 4-х сторон на производстве
Обработка торцов составом, предохраняющим от проникновения влаги, растрескивания
Утепление межвенцового паза  и чаши утеплителем Политерм
Стягивание бруса узлом силы в шахматном порядке на расстоянии в полтора метра
Балки перекрытия из сухого бруса 100х200 мм, обработанные биозащитным составом
Упаковка в специальную защитную пленку
Черновая строительная однопролетная лестница
Кровля
Стропильная система из доски 50х200 мм
Контробрешетка из бруска 50х50 мм
Обрешетка из доски 25х100 мм
Все деревянные элементы обработаны биозащитным составом
Утепление 200 мм с использованием экологически чистых утеплителей
Пароизоляция мембранного типа и ветро-влагозащита
Металлочерепицы Grand Line (покрытие Satin, комплектующие по проекту)
Цвет кровельного покрытия на выбор

Хотите внести изменения в проект?

Заполните форму и мы с вами свяжемся в ближайшее время

Клееный брус

собственного производства

Строительство дома из клееного бруса становится все более популярным выбором среди людей, стремящихся к экологичному и устойчивому образу жизни.

Клееный брус - это материал, изготовленный путем склеивания нескольких слоев древесины. Он обладает рядом преимуществ, которые делают его привлекательным для строительства коттеджей, загородных домов и коттеджных поселков.

В этой статье мы рассмотрим основные преимущества строительства дома из клееного бруса.

Подробнее
Клееный брус

Остались вопросы?

Поможем построить качественный дом и воплотить ваши желания в реальность