Роскошный дом впечатляет не только своими размерами и внешним видом, но и грамотно продуманной планировкой. Лаконичный ландшафтный дизайн ненавязчиво подчеркивает индивидуальность и красоту современного строения. В нём всем просторно, уютно и солнечно.
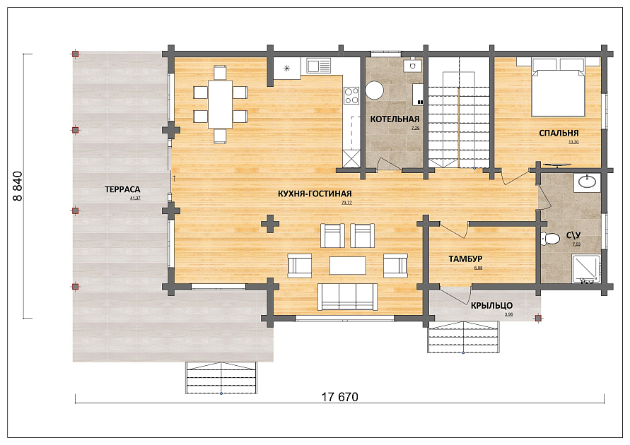
Дом имеет два входа: с Г-образной террасы (41,37 кв.м) в кухню-гостиную (используется летом) и второй (круглогодичный) – крыльцо главного фасада (3,96 кв.м) в тамбур (6,98 кв.м) с функционалом прихожей.
На первом этаже: впечатляющая по площади кухня-гостиная (73,77 кв.м) с выделенными зонами: гостиной, кухонной и обеденной. Со вторым светом просторное помещение выглядит эффектно и престижно. Грамотно организовано в стороне размещение спальной (13,30 кв.м) для самых старших членов семьи или гостей, санузел с душевой кабиной (7,53 кв.м). Котельная (7,29 кв.м) имеет отдельный вход.
На втором этаже – светлый холл (16,66 кв.м). Три спальни (11,62 кв.м, 11,63 кв.м, 19,96 кв.м), большая с выходом на балкон (7,61 кв.м) для любителей простора. Имеется гардеробная (3,95 кв.м). Наличие ванной комнаты (9,99 кв.м) и санузла (4,68 кв.м) – удачное решение для начала доброго дня.
Современный дом – это умный дом, в котором всё создано для комфортной и благополучной жизни.
Строительство дома из клееного бруса становится все более популярным выбором среди людей, стремящихся к экологичному и устойчивому образу жизни.
Клееный брус - это материал, изготовленный путем склеивания нескольких слоев древесины. Он обладает рядом преимуществ, которые делают его привлекательным для строительства коттеджей, загородных домов и коттеджных поселков.
В этой статье мы рассмотрим основные преимущества строительства дома из клееного бруса.
Дома из клеёного бруса являются популярным выбором для тех, кто желает создать уютное и экологичное жильё. Важным преимуществом клеёного бруса является его прочность и спрочность, а также возможность использовать его для создания различных архитектурных форм и планировок. Давайте рассмотрим, какие дома можно построить из клеёного бруса и какие дизайнерские решения применяются в таких строениях.
Одним из основных преимуществ домов из клеёного бруса является то, что они могут быть построены в различных стилях и размерах. От небольших дачных домов до просторных загородных коттеджей - клеёный брус подходит для разнообразных планировочных решений.
Благодаря гибкости клеёного бруса, проектировщики могут создавать оригинальные архитектурные формы и уникальные дизайнерские решения для домов. Это может включать в себя строительство домов с нестандартной геометрией, оригинальными верандами и террасами, а также добавление изогнутых балконов и крытых патио. Такая гибкость в планировке и дизайне делает клеёный брус привлекательным для тех, кто хочет создать уникальное и персональное жильё.
Более того, дома из клеёного бруса могут быть спроектированы и построены с учетом различных потребностей и желаний заказчика. Это может включать в себя внутренние перегородки, размещение окон и дверей в нужных местах, а также создание просторной и функциональной кухни, гостиной или спальни.
В заключение, дома из клеёного бруса предоставляют широкие возможности для разнообразия планировок и дизайнерских решений. Они могут быть построены в различных стилях, размерах и формах, в соответствии с предпочтениями заказчика. Гибкость этого материала позволяет создавать уникальные и стильные жилища, которые будут радовать своих владельцев не только своей красотой, но и экологичностью и уютом.
Строительство дома из клееного бруса становится все более популярным выбором среди людей, стремящихся к экологичному и устойчивому образу жизни. Клееный брус - это материал, изготовленный путем склеивания нескольких слоев древесины. Он обладает рядом преимуществ, которые делают его привлекательным для строительства коттеджей, загородных домов и коттеджных поселков. В этой статье мы рассмотрим основные преимущества строительства дома из клееного бруса.
Добро пожаловать в наш каталог домов
В нашем каталоге вы найдете широкий выбор проектов домов различных типов и площадей.
Мы специализируемся на строительстве:
• Домов из клееного бруса
• Каменных домов
• Каркасных домов
• Домов из других материалов
Почему стоит выбрать нас?
• Более 25 лет опыта в строительстве
• Индивидуальный подход к каждому клиенту
• Качественные материалы и современные технологии
• Строительство под ключ
• Работа по всей Московской области
Не знаете с чего начать?
Используйте фильтры для подбора подходящего проекта или свяжитесь с нами для бесплатной консультации.