Описание

Дом по проекту «Оптимус» 
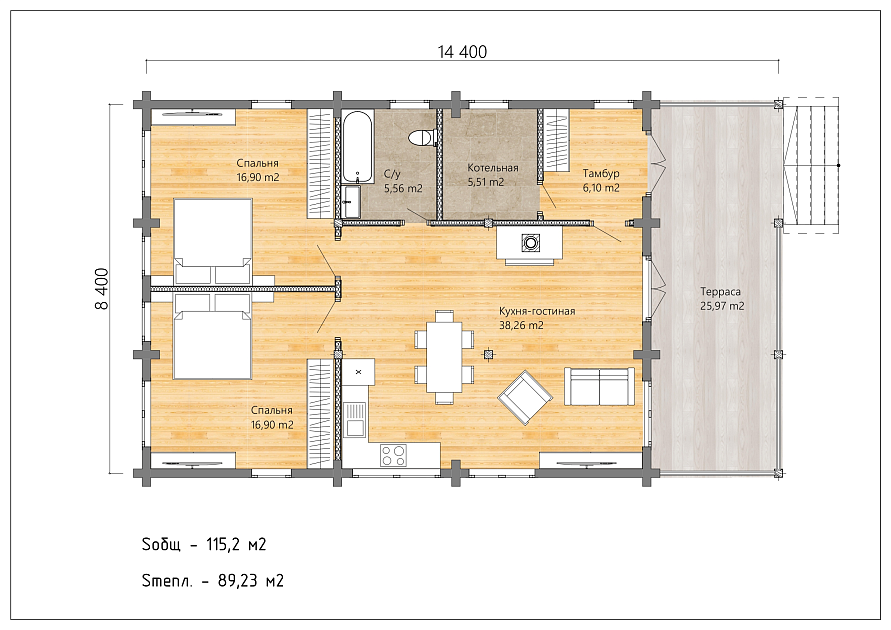
Дом из бруса общей площадью 115 квадратных метров.

Кажущаяся простота архитектуры дома обманчива. На просторном участке такой дом выглядит эффектно: строгая симметрия в планировке, открытая просторная веранда и двухскатная крыша. Натуральные материалы, идеально подобранные природные цвета дома, крыши и фундамента создают ощущение воздушности и гармонии с окружающим миром.

Открытая терраса (25,97 кв.м) функциональна в любое время года. В хорошую тёплую погоду здесь приятно проводить время своей семьей или принимать гостей. В ненастье или холодное время года можно пофантазировать и сделать на террасе, например, игровую площадку или спортивный уголок для детей.

В этом проекте предусмотрен тамбур (5,59 кв.м) с функцией прихожей. Он оборудован встроенными шкафами для верхней одежды и обуви. Рекомендуем сделать тёплый пол, тогда будет решена проблема сушки промокшей обуви в межсезонье. Это сделает жизнь более комфортной.

Самое большое помещение в доме – совмещенная кухня-гостиная (38,26 кв.м) имеет свои плюсы. Современные дизайнерские приемы позволят грамотно использовать большую площадь, разделив её на зоны. Можно «поиграть» с мебелью и разместить обеденную зону с большим красивым столом, зону отдыха с просторным диваном и широкоформатным телевизором. При этом кухонная зона займет совсем немного места, но его достаточно для приготовления еды. И, что особенно ценно, при желании вся семья может здесь проводить своё свободное время, дружно участвуя в общих семейных хлопотах. Будь то приготовление каких-то вкусностей или просмотр хорошего фильма.

Две спальни одинаковой площади (по 16,9 кв.м) светлые и просторные. Грамотная и рациональная расстановка мебели позволит использовать эти комнаты не только для отдыха, но и обустроить в них рабочие места.

Довольно просторный совмещенный санузел (5,92 кв.м). Благодаря наличию окна эта ванная воспринимается именно как полноценная комната, а не просто замкнутое со всех сторон помещение.

В доме находится котельная (5,61 кв.м). Это очень удобно, так как в любое время года и суток все действия по контролю работы оборудования можно производить, не выходя из дома.

В доме по проекту «Оптимус» созданы все условия для комфортного проживания небольшой семьи.

Базовая комплектация

Общее
Все транспортные расходы в пределах Московской, Кировской областей
Погрузочно-разгрузочные работы
Организация проживания рабочих (бытовка, биотуалет)
Вывоз мусора после завершения строительства
Монтаж специалистами Дом Форест
Технический надзор специалистами компании
Гарантия 5 лет
Техническое обслуживание №1
Проектная документация
Эскизный проект
Проектная документация раздел КД (конструкции деревянные)
Обследование земельного участка
Привязка пятна застройки и оценка состояния участка
Геодезия (топосъемка) пятна застройки
Подробная консультация специалиста по размещению строения на участке с учетом строительных, противопожарных норм с ориентацией по сторонам света
Фундамент
Разметка свайного поля
Железобетонные забивные сваи из высокопрочного бетона и рифленой арматуры
Забивка свай с применением на площадке специальной техники - миникопра
Монтаж усиленной двойной обвязки брусом сечением 200 х 150 мм из хвойных пород с обработкой биозащитой
Обрезка свай по уровню
Крепление и гидроизоляция оголовков свай
По запросу возможны другие варианты фундаментов
Стеновой комплект
Двойная обвязка брусом сечением 200 х 150 мм, обработанный биозащитным составом
Рулонная гидроизоляция
Брус профилированный камерной сушки сечением 195х145(h)мм
Антисептирование стенового бруса с 4-х сторон на производстве
Обработка торцов составом, предохраняющим от проникновения влаги, растрескивания
Утепление межвенцового паза  и чаши утеплителем Политерм
Стягивание бруса узлом силы в шахматном порядке на расстоянии в полтора метра
Балки перекрытия из сухого бруса 100х200 мм, обработанные биозащитным составом
Упаковка в специальную защитную пленку
Черновая строительная однопролетная лестница
Кровля
Стропильная система из доски 50х200 мм
Контробрешетка из бруска 50х50 мм
Обрешетка из доски 25х100 мм
Все деревянные элементы обработаны биозащитным составом
Утепление 200 мм с использованием экологически чистых утеплителей
Пароизоляция мембранного типа и ветро-влагозащита
Металлочерепицы Grand Line (покрытие Satin, комплектующие по проекту)
Цвет кровельного покрытия на выбор

Хотите внести изменения в проект?

Заполните форму и мы с вами свяжемся в ближайшее время

Клееный брус

собственного производства

Строительство дома из клееного бруса становится все более популярным выбором среди людей, стремящихся к экологичному и устойчивому образу жизни.

Клееный брус - это материал, изготовленный путем склеивания нескольких слоев древесины. Он обладает рядом преимуществ, которые делают его привлекательным для строительства коттеджей, загородных домов и коттеджных поселков.

В этой статье мы рассмотрим основные преимущества строительства дома из клееного бруса.

Подробнее
Клееный брус

 


Добро пожаловать в наш каталог домов

В нашем каталоге вы найдете широкий выбор проектов домов различных типов и площадей.

Мы специализируемся на строительстве:

• Домов из клееного бруса

• Каменных домов

• Каркасных домов

• Домов из других материалов


Почему стоит выбрать нас?

• Более 25 лет опыта в строительстве

• Индивидуальный подход к каждому клиенту

• Качественные материалы и современные технологии

• Строительство под ключ

• Работа по всей Московской области


Не знаете с чего начать?

Используйте фильтры для подбора подходящего проекта или свяжитесь с нами для бесплатной консультации.



Остались вопросы?

Поможем построить качественный дом и воплотить ваши желания в реальность