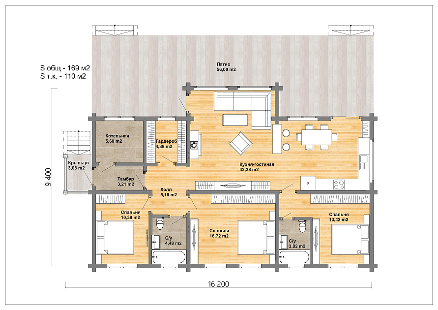
Одноэтажный, загородный дом в стиле минимализм. Натуральные строительные материалы, простота форм и природные цвета органично вписывают дом в окружающий ландшафт. Дом смотрится легко и элегантно благодаря оригинальной конструкции крыши и большим окнам, являющихся неотъемлемым украшением строения.
Характерной особенностью этого проекта является отсутствие привычной всем террасы, но наличие просторного патио позволяет полноценно отдыхать и наслаждаться загородной жизнью.
В доме два входа: круглогодичный с крыльца (3,08 кв.м) через тамбур (3,21 кв.м) в холл (5,10 кв.м), второй - летний с патио (56,00 кв.м) в просторную кухню-гостиную (42,28 кв.м).
Привлекательно в проекте наличие гардеробной (4,88 кв.м) при входе в жилую часть дома.
В доме две спальни для членов семьи (10,39 кв.м, 16,72 кв.м) и санузлом (4,48 кв.м), а также хозяйская мастер-спальня (13,42 кв.м) с санузлом (3,82 кв.м). Из тамбура вход в помещение котельной (4,63 кв.м).
Строительство дома из клееного бруса становится все более популярным выбором среди людей, стремящихся к экологичному и устойчивому образу жизни.
Клееный брус - это материал, изготовленный путем склеивания нескольких слоев древесины. Он обладает рядом преимуществ, которые делают его привлекательным для строительства коттеджей, загородных домов и коттеджных поселков.
В этой статье мы рассмотрим основные преимущества строительства дома из клееного бруса.
Дома из клеёного бруса являются популярным выбором для тех, кто желает создать уютное и экологичное жильё. Важным преимуществом клеёного бруса является его прочность и спрочность, а также возможность использовать его для создания различных архитектурных форм и планировок. Давайте рассмотрим, какие дома можно построить из клеёного бруса и какие дизайнерские решения применяются в таких строениях.
Одним из основных преимуществ домов из клеёного бруса является то, что они могут быть построены в различных стилях и размерах. От небольших дачных домов до просторных загородных коттеджей - клеёный брус подходит для разнообразных планировочных решений.
Благодаря гибкости клеёного бруса, проектировщики могут создавать оригинальные архитектурные формы и уникальные дизайнерские решения для домов. Это может включать в себя строительство домов с нестандартной геометрией, оригинальными верандами и террасами, а также добавление изогнутых балконов и крытых патио. Такая гибкость в планировке и дизайне делает клеёный брус привлекательным для тех, кто хочет создать уникальное и персональное жильё.
Более того, дома из клеёного бруса могут быть спроектированы и построены с учетом различных потребностей и желаний заказчика. Это может включать в себя внутренние перегородки, размещение окон и дверей в нужных местах, а также создание просторной и функциональной кухни, гостиной или спальни.
В заключение, дома из клеёного бруса предоставляют широкие возможности для разнообразия планировок и дизайнерских решений. Они могут быть построены в различных стилях, размерах и формах, в соответствии с предпочтениями заказчика. Гибкость этого материала позволяет создавать уникальные и стильные жилища, которые будут радовать своих владельцев не только своей красотой, но и экологичностью и уютом.
Строительство дома из клееного бруса становится все более популярным выбором среди людей, стремящихся к экологичному и устойчивому образу жизни. Клееный брус - это материал, изготовленный путем склеивания нескольких слоев древесины. Он обладает рядом преимуществ, которые делают его привлекательным для строительства коттеджей, загородных домов и коттеджных поселков. В этой статье мы рассмотрим основные преимущества строительства дома из клееного бруса.