Описание

Дом по проекту «Таврус»

Красивый одноэтажный дом из экологически чистых строительных материалов. Благодаря кажущейся архитектурной простоте и светлым фасадам в сочетании с большими окнами дом смотрится легко и изящно.

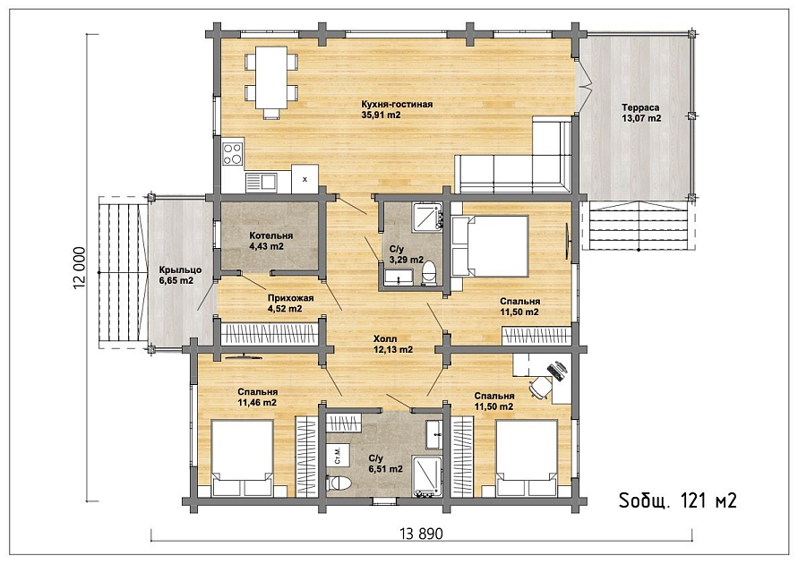
В доме все предусмотрено для комфортного круглогодичного проживания семьи из 5 – 6 человек. Большая кухня-гостиная (35,91 кв.м) с выходом на открытую террасу (13,07 кв.м) –излюбленное место отдыха и общения. Прозрачная дверь как будто объединяет большую комнату и террасу. Благодаря дополнительному освещению через окна, достигнут эффект большого единого пространства.

В доме два входа: летний – через террасу и круглогодичный – через крыльцо (6,65 кв.м). Прихожая (4,52 кв.м) оборудована встроенными шкафами для верхней одежды с современными системами хранения. Пройдя уютный просторный холл (12,13 кв.м), можно попасть в три одинаковые по площади спальни (11,46 кв.м, 11,50 кв.м, 11,50 кв.м). При необходимости в них можно оборудовать рабочее место.

В доме два санузла – гостевой (3,29 кв.м) с душевой кабиной и хозяйский (6,51 кв.м) с ванной. Оба санузла оборудованы скрытыми системами хранения. Котельная (4,43 кв.м) находится в доме рядом с прихожей, что очень удобно при обслуживании отопительного оборудования.

Свой дом – это инвестиции в здоровье, хорошее настроение и благополучное будущее семьи!

Базовая комплектация

Проектная документация
Эскизный проект
Проектная документация раздел КД (конструкции деревянные)
Обследование земельного участка
Привязка пятна застройки и оценка состояния участка
Геодезия (топосъемка) пятна застройки
Подробная консультация специалиста по размещению строения на участке с учетом строительных, противопожарных норм с ориентацией по сторонам света
Фундамент
Разметка свайного поля
Железобетонные забивные сваи из высокопрочного бетона и рифленой арматуры
Забивка свай с применением на площадке специальной техники - миникопра
Монтаж усиленной двойной обвязки брусом сечением 200 х 150 мм из хвойных пород с обработкой биозащитой
Обрезка свай по уровню
Крепление и гидроизоляция оголовков свай
По запросу возможны другие варианты фундаментов
Стеновой комплект
Двойная обвязка брусом сечением 200 х 150 мм, обработанный биозащитным составом
Рулонная гидроизоляция
Брус клееный профилированный сечением (внешние стены) 205х185(h)мм
Брус клееный профилированный сечением (внутренние перегородки) 160х185(h)мм
Клеевая система Akzo Nobel (Швеция)
Антисептирование стенового бруса с 4-х сторон на производстве
Обработка торцов составом, предохраняющим от проникновения влаги, растрескивания
Утепление межвенцового паза и чаши утеплителем Политерм
Стягивание бруса узлом силы в шахматном порядке на расстоянии в полтора метра
Балки перекрытия из сухого бруса 100х200 мм, обработанные биозащитным составом
Упаковка в специальную защитную пленку
Черновая строительная однопролетная лестница
Кровля
Стропильная система из доски 50х200 мм
Контробрешетка из бруска 50х50 мм
Обрешетка из доски 25х100 мм
Все деревянные элементы обработаны биозащитным составом
Утепление 200 мм с использованием экологически чистых утеплителей
Пароизоляция мембранного типа и ветро-влагозащита
Металлочерепицы Grand Line (покрытие Satin, комплектующие по проекту)
Цвет кровельного покрытия на выбор

Хотите внести изменения в проект?

Заполните форму и мы с вами свяжемся в ближайшее время

Клееный брус

собственного производства

Строительство дома из клееного бруса становится все более популярным выбором среди людей, стремящихся к экологичному и устойчивому образу жизни.

Клееный брус - это материал, изготовленный путем склеивания нескольких слоев древесины. Он обладает рядом преимуществ, которые делают его привлекательным для строительства коттеджей, загородных домов и коттеджных поселков.

В этой статье мы рассмотрим основные преимущества строительства дома из клееного бруса.

Подробнее
Клееный брус

 


Добро пожаловать в наш каталог домов

В нашем каталоге вы найдете широкий выбор проектов домов различных типов и площадей.

Мы специализируемся на строительстве:

• Домов из клееного бруса

• Каменных домов

• Каркасных домов

• Домов из других материалов


Почему стоит выбрать нас?

• Более 25 лет опыта в строительстве

• Индивидуальный подход к каждому клиенту

• Качественные материалы и современные технологии

• Строительство под ключ

• Работа по всей Московской области


Не знаете с чего начать?

Используйте фильтры для подбора подходящего проекта или свяжитесь с нами для бесплатной консультации.



Остались вопросы?

Поможем построить качественный дом и воплотить ваши желания в реальность