Описание

Дом по проекту «Бриз»

На фоне главного фасада изящно смотрится большая открытая терраса (30,59 кв.м) с уголком для отдыха. Летом терраса задействована круглосуточно. Желающие проснуться под пенье птиц предпочитают тут ночёвки на свежем воздухе.

На первом этаже в доме два входа: первый – с большой террасы через кухню (21,50 кв.м), здесь находится обеденная зона. Второй вход в дом – с малой террасы (10,60 кв.м) через тамбур (9,35 кв.м) в гостиную (26,08 кв.м).

Гостиная – особенное, атмосферное место в доме. За счёт второго света здесь всегда просторно, светло и торжественно. А благодаря правильно подобранному освещению легко создать позитивное настроение в любое время суток. Грамотные архитекторы нашей компании предусмотрели удаленную от других помещений гостевую спальню (12,17 кв.м), рядом с которой находится санузел (8,15 кв.м). В отдельный блок выделены технические помещения: топочная (6,23 кв.м) и гараж (20,86 кв.м), имеющие вход с улицы. В гараж еще можно зайти, не выходя из дома, сразу из тамбура.

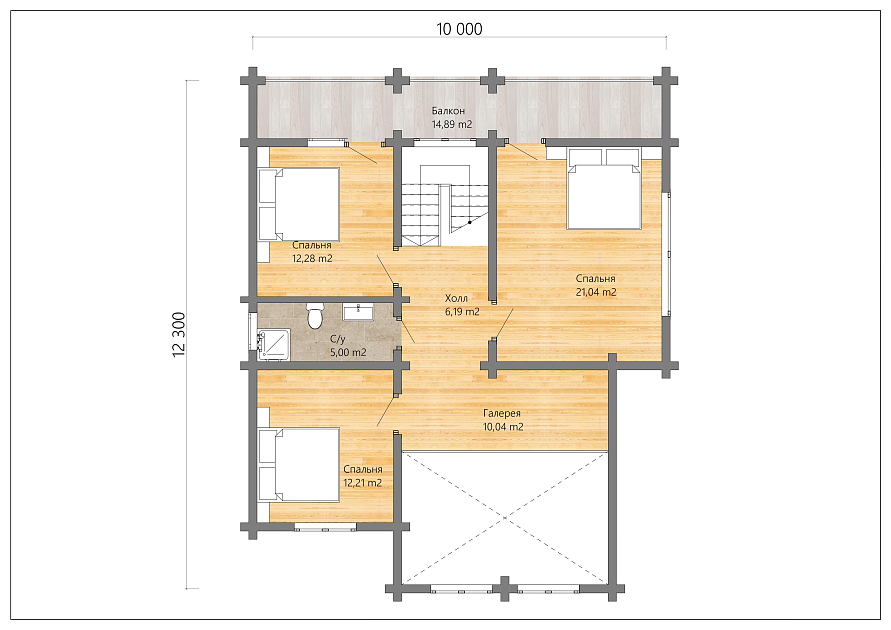
На втором этаже находятся: санузел (5,00 кв.м), три спальни (12,21 кв.м, 12,28 кв.м, 21,04 кв.м) для проживающих в доме, две – с выходом на балкон (14,89 кв.м). Небольшой холл (6,19 кв.м) объединен с галереей (10,04 кв.м).

Современный дом – это умный дом, в котором все создано для комфортной и благополучной жизни людей.



Базовая комплектация

Общее
Все транспортные расходы в пределах Московской, Кировской областей
Погрузочно-разгрузочные работы
Организация проживания рабочих (бытовка, биотуалет)
Вывоз мусора после завершения строительства
Монтаж специалистами Дом Форест
Технический надзор специалистами компании
Гарантия 5 лет
Техническое обслуживание №1
Проектная документация
Эскизный проект
Проектная документация раздел КД (конструкции деревянные)
Обследование земельного участка
Привязка пятна застройки и оценка состояния участка
Геодезия (топосъемка) пятна застройки
Подробная консультация специалиста по размещению строения на участке с учетом строительных, противопожарных норм с ориентацией по сторонам света
Фундамент
Разметка свайного поля
Железобетонные забивные сваи из высокопрочного бетона и рифленой арматуры
Забивка свай с применением на площадке специальной техники - миникопра
Монтаж усиленной двойной обвязки брусом сечением 200 х 150 мм из хвойных пород с обработкой биозащитой
Обрезка свай по уровню
Крепление и гидроизоляция оголовков свай
По запросу возможны другие варианты фундаментов
Стеновой комплект
Двойная обвязка брусом сечением 200 х 150 мм, обработанный биозащитным составом
Рулонная гидроизоляция
Брус профилированный камерной сушки сечением 195х145(h)мм
Антисептирование стенового бруса с 4-х сторон на производстве
Обработка торцов составом, предохраняющим от проникновения влаги, растрескивания
Утепление межвенцового паза  и чаши утеплителем Политерм
Стягивание бруса узлом силы в шахматном порядке на расстоянии в полтора метра
Балки перекрытия из сухого бруса 100х200 мм, обработанные биозащитным составом
Упаковка в специальную защитную пленку
Черновая строительная однопролетная лестница
Кровля
Стропильная система из доски 50х200 мм
Контробрешетка из бруска 50х50 мм
Обрешетка из доски 25х100 мм
Все деревянные элементы обработаны биозащитным составом
Утепление 200 мм с использованием экологически чистых утеплителей
Пароизоляция мембранного типа и ветро-влагозащита
Металлочерепицы Grand Line (покрытие Satin, комплектующие по проекту)
Цвет кровельного покрытия на выбор

Хотите внести изменения в проект?

Заполните форму и мы с вами свяжемся в ближайшее время

Клееный брус

собственного производства

Строительство дома из клееного бруса становится все более популярным выбором среди людей, стремящихся к экологичному и устойчивому образу жизни.

Клееный брус - это материал, изготовленный путем склеивания нескольких слоев древесины. Он обладает рядом преимуществ, которые делают его привлекательным для строительства коттеджей, загородных домов и коттеджных поселков.

В этой статье мы рассмотрим основные преимущества строительства дома из клееного бруса.

Подробнее
Клееный брус

 


Добро пожаловать в наш каталог домов

В нашем каталоге вы найдете широкий выбор проектов домов различных типов и площадей.

Мы специализируемся на строительстве:

• Домов из клееного бруса

• Каменных домов

• Каркасных домов

• Домов из других материалов


Почему стоит выбрать нас?

• Более 25 лет опыта в строительстве

• Индивидуальный подход к каждому клиенту

• Качественные материалы и современные технологии

• Строительство под ключ

• Работа по всей Московской области


Не знаете с чего начать?

Используйте фильтры для подбора подходящего проекта или свяжитесь с нами для бесплатной консультации.



Остались вопросы?

Поможем построить качественный дом и воплотить ваши желания в реальность